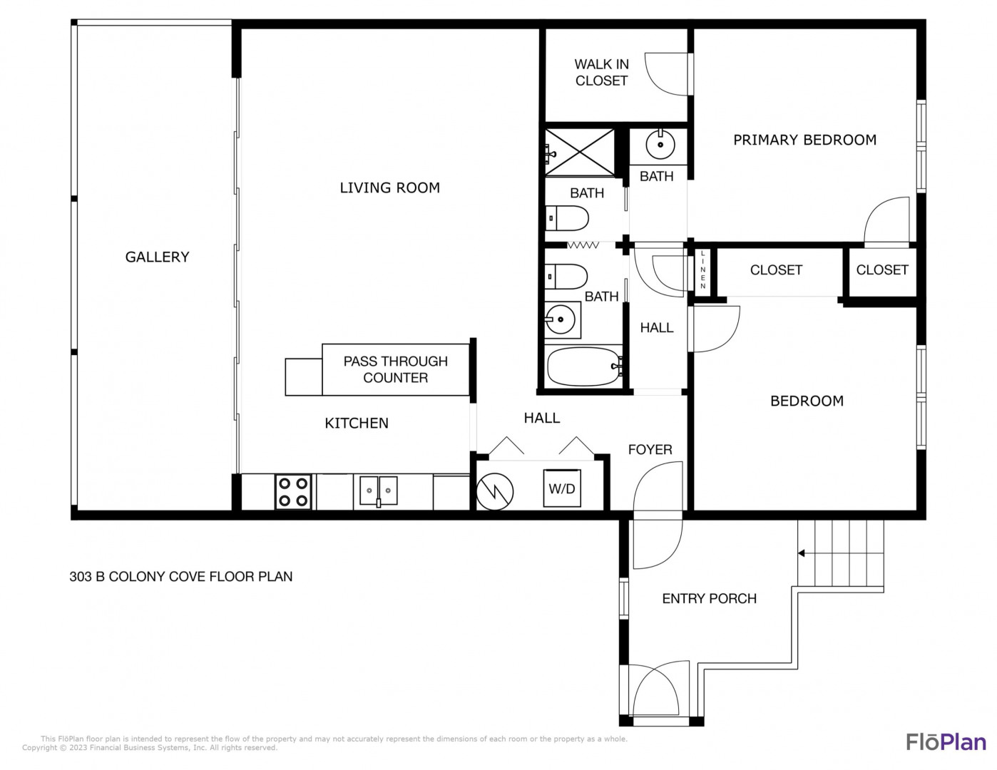
Highlights of 303 Golden Rock Co
- Approx Int Sqft
- 112,953
- Quarter
- Company
- Sub Type
- Condominium
- Total Bedrooms
- 2
- MLS #
- 23-1090
- Status
- Closed
- Total Bathrooms
- 2
- Year Built
- 1969
-
Property Description
Dreaming of island life right on the beach in a gated condo complex? This spacious and breezy condo has a wall of sliders in the great room to capture the view of the Caribbean Sea, Buck Island, and the island breezes! Relax on the large gallery, or enjoy the sea and garden view from the great room. This condo has great details - granite countertops in the kitchen, walk-in closet in the main bedroom, AC in both bedrooms, and washer/dryer in the unit. Stroll the garden park setting or wander through the gate to the sunny pool, right onto the beach. Conveniently located minutes to Christiansted, grocery stores, restaurants, and other services. Monthly fees include insurance, satellite TV, phone and internet. A fantastic place to live or rent for extra income!
-
Additional Info
- Condo Name: Colony Cove
- Waterfront: Yes
- Intended Use: Other
-
Amenities
- Furnished: Negotiable
- Pool: Yes
-
Fees and Taxes
- Condo Fee: $1382.00
- Taxes: 290.77
- Tax Year: 2022
Listing courtesy of Coldwell Banker St.Croix Realty - GB, (340) 778-7000.
Map
303 Golden Rock Co, Company St. Croix, 00820
Loading Map...
303 Golden Rock Co
