Highlights of 11-a St. John Qu
- Approx Int Sqft
- 3,600
- MLS #
- 24-2193
- Status
- Active
- Total Approx. SqFt
- 4,683
- Total Bedrooms
- 5
- Year Built
- 1994
- Lot Acres
- 1.90
- Quarter
- Queen
- Sub Type
- Residential - 1 Apt
- Total Bathrooms
- 5
- Total SqFt
- 4,683
-
Property Description
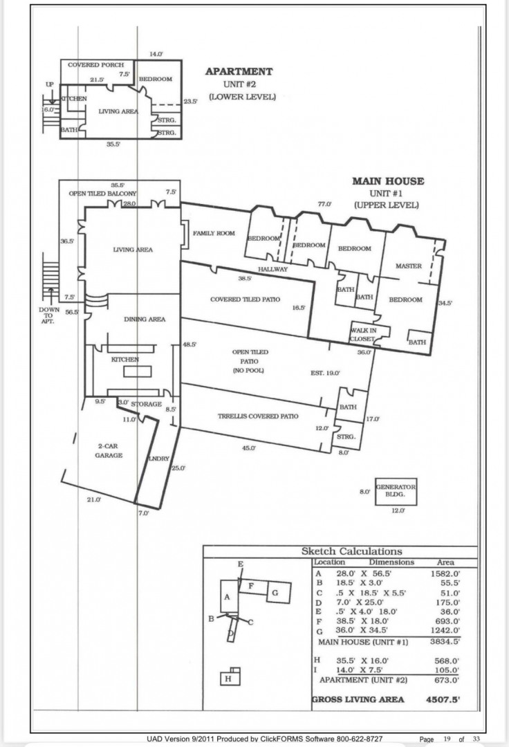
Welcome to your hilltop retreat--offered for the first time on the market. This impressive residence boasts approximately 3,800 sq. ft. of living space designed for comfort, style, and unforgettable gatherings. The main home features 4 spacious bedrooms, 4 bathrooms, a bonus room for an office; a stunning courtyard, and generous formal dining and entertaining areas that flow beautifully throughout.A two-car garage provides convenience and storage, while the separate 1-bedroom, 1-bath apartment (roughly 630 sq. ft.) offers ideal space for guests, extended family, or rental income.Set on 1.89 acres, this property offers privacy, elevation, and room to truly live. Homes like this don't come around often--this is a must-see opportunity.
-
Additional Info
- Restrictions: None Noted
- Zoning: R-2
-
Fees and Taxes
- Tax Year: 2024
- Taxes: 1092.77
Listing courtesy of RE/MAX USVI Real Estate Brokers - St. Croix, (340) 773-1048.
Map
11-a St. John Qu, Queen St. Croix, 00820
Loading Map...
11-a St. John Qu
